琵琶町1丁目新築戸建
◆六甲道駅徒歩4分の好立地新築戸建◆
今なら外観・間取りご相談可能です♪
オープンハウス 毎週土日祝
- ※事前に必ずお問い合わせください
- ●〇●〇●〇●〇●〇●〇●〇●〇●〇●〇●〇●〇●〇●〇
『ご案内について』
◆ご見学だけでも大丈夫です! まずは物件を一度ご覧ください♪
◇平日・祝祭日問わずいつでもご案内可能です!
◆物件の周辺環境や近隣施設も、もちろんご案内させて頂きます!
◇現地待ち合わせも可能です!
◆ご希望の場所への送迎も可能です♪
『住宅ローン・資金計画について』
◇住宅ローンアドバイザーによる無料でいつでも相談可能です!
・いくらまでローンが組める?
・諸費用も含めてローン組めるか?
・頭金(自己資金)が少ない、勤続年数が少ない
・自営業、契約社員、派遣社員だが・・・ローンは組めるか?等々
◆数ある金融機関よりお客様にとっての最良をご提案させて頂きます!
◇ご購入にあたり資金計画など、お気軽にご相談ください!
『売却について』
◆自宅がいくらで売却できるか知りたい!
◇ひとまずは売却相場が知りたい!
◆自宅の買い替えを検討したい!
◇いつでも、どこでもすぐに価格査定が可能です!
◆弊社にて買取も可能ですので、お気軽にご相談ください!
●〇●〇●〇●〇●〇●〇●〇●〇●〇●〇●〇●〇●〇●〇
-
ローンシミュレーションこの物件を購入した場合の、月々の支払い価格の一例です。借り入れを保証するものではございません。
- 返済期間
-
- 金利
-
- ボーナス時の増額(1回分)
-
- 借入金額:
-
- 頭金:
-

- 毎月の返済額:
(※元利均等方式 金利5.00%まで ※返済年数5~50年まで入力できます)
(※ボーナスは年2回で計算しています。1000万円まで入力できます)
(※物件購入時、その他諸費用が発生する場合がございます)
情報の見方担当者のコメント 森國祥一

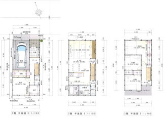
- □間取り参考プランですので、外観・間取りのご相談が可能です。
■駅チカ!3路線利用可能♪・スーパーやコンビニ近く周辺施設充実
JR東海道本線 快速停車駅「六甲道」駅徒歩約5分
□3WAYアクセス可能♪通勤通学路線も選べて便利な立地です。
■周辺にはスーパーやコンビニ等が点在しており、お車を運転されない方にも生活しやすい住環境♪
□現地のご案内いつでも可能です。
■ローンや諸費用のご相談もお任せ下さい。
□お気軽にお問い合わせください!!
ポイント・特徴
物件概要
【新築一戸建】 物件番号:100195463 情報更新日:2026年01月23日 次回更新予定日:2026年02月06日所在地 兵庫県神戸市灘区琵琶町1丁目 交通 間取り/詳細 4LDK/ 建物面積(坪数) 131.67㎡(39.83坪) 価格 8,280万円 駐車場/月額料金 有/0円 土地の敷金/保証金 -/- 借地料/借地期間 -/- 土地権利 所有権 土地面積(坪数) 70.00㎡(21.17坪) 傾斜地部分面積 - 路地状敷地 - 私道負担面積/セットバック -/無 高圧線下面積 - 地目/地勢 宅地/平坦 接道状況 一方(北 公道 6.0m 間口 6.0m) 建ぺい率/容積率 60%/200% 用途地域 第一種住居 都市計画 市街化区域 種別/構造 新築一戸建/木造 階建 3階建 築年月(築年数) 2026年 10月 (予定) 総区画数/販売区画数 -/- 向き - 現況 未着工 その他の法令上の制限 - 取引態様/引渡時期 専任媒介/相談 建築確認番号 第J25-20399号 物件番号 100195463 取引条件の有効期限 2026年02月06日 設備条件 - ペット相談
- 陽当り良好
- 閑静な住宅地
- オープンハウス
- フローリング
- バルコニー
- 都市ガス
- 公営水道
- 公共下水
- 24時間換気システム
- 電気有
- ビルトガレージ
- 食器洗い乾燥機
- システムキッチン
- 対面式キッチン
- バス・トイレ別
- 追焚機能浴室
- 浴室乾燥機
- 温水洗浄便座
- 洗面台
- 洗髪洗面化粧台
- トイレ2ヶ所
- 浴室1坪以上
- 独立洗面台
- 床暖房
- ウォークインクロゼット
- ウォークインシューズクロゼット
- TVモニタ付インターホン
- 宅配ボックス
- ディンプルキー
備考 ◆センチュリー21全国約1.000店舗◆
安心ネットワークの当社にお任せください!お客様を全力でサポート致します!取扱会社 - センチュリー21 イーアールホームズ
- 兵庫県神戸市灘区八幡町2丁目12-17 阪急六甲ERCビル 1階
- TEL:078-845-9921
- 兵庫県知事 (2) 第11959号
- 公益社団法人不動産保証協会
※地図上に表示される物件の位置は付近住所に所在することを表すものであり、実際の物件所在地とは異なる場合がございます。
物件お問い合わせ
価格と住所の近い物件
- 上野通3丁目 新築戸建 2棟
- 5,580万円 4LDK/95.58㎡
- 兵庫県神戸市灘区上野通3丁目
- 阪急神戸本線「王子公園」駅 徒歩13分
- 琵琶町1丁目戸建
- 5,380万円 4LDK/128.76㎡
- 兵庫県神戸市灘区琵琶町1丁目
- 東海道本線「六甲道」駅 徒歩5分
- AVANINA灘南通5丁目
- 5,280万円 4LDK/102.25㎡
- 兵庫県神戸市灘区灘南通5丁目
- 東海道本線「摩耶」駅 徒歩2分
- 高羽町2丁目新築戸建
- 5,280万円 3LDK/95.58㎡
- 兵庫県神戸市灘区高羽町2丁目
- 阪急神戸本線「六甲」駅 徒歩9分
- 中原通新築戸建
- 4,680万円 3LDK/81.00㎡
- 兵庫県神戸市灘区中原通1丁目
- 阪急神戸本線「王子公園」駅 徒歩11分




























